Televize MiTEL TV
RSS
cz

Překlad (translations)

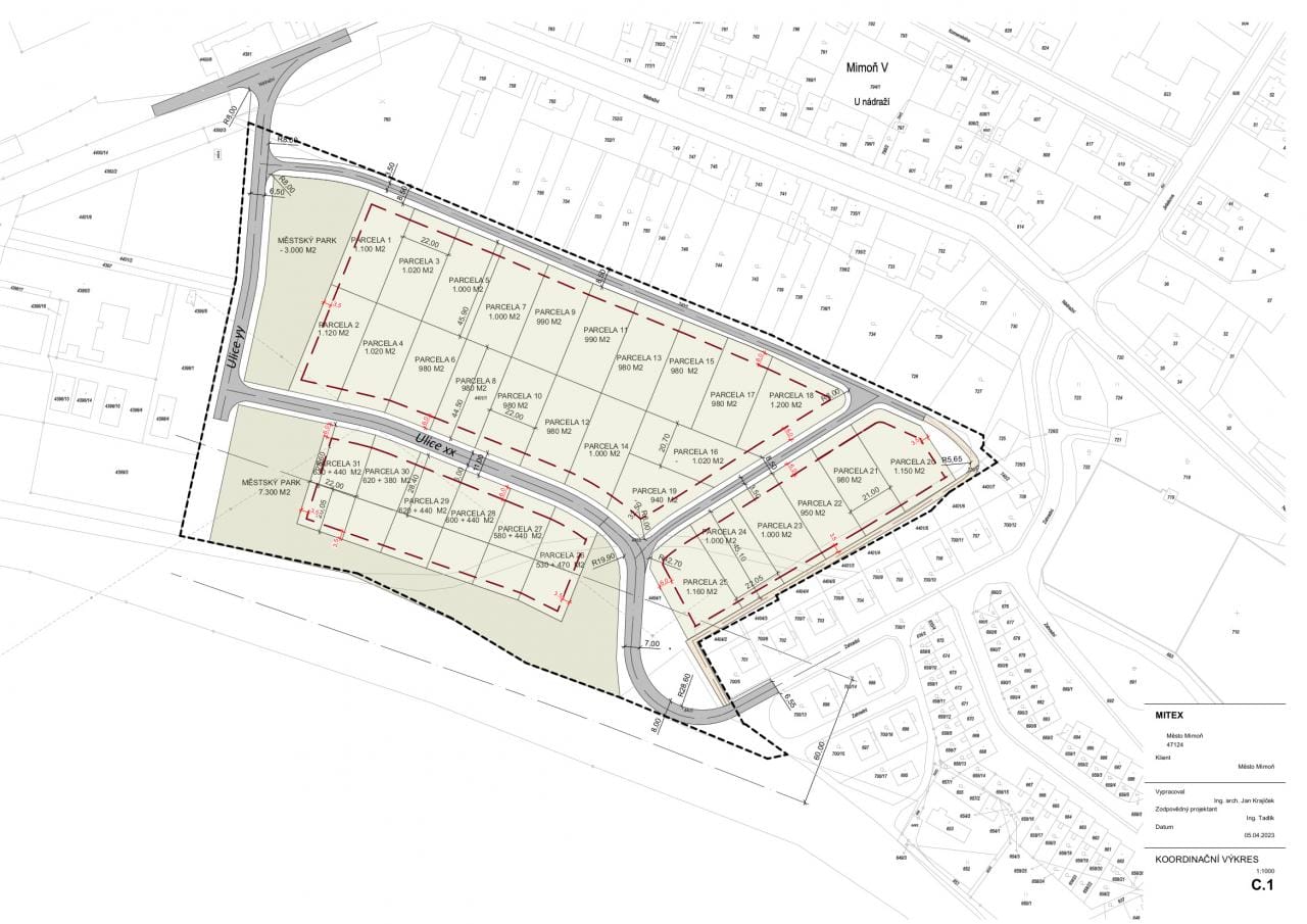
Záměr města Mimoň prodat pozemky na stavbu RD (rodinné domy) v lokalitě „U MITEXU“

Záměr města Mimoň prodat pozemky na stavbu RD (rodinné domy) v lokalitě „U MITEXU“

Jednotková cena za 1 m2 stavební parcely (pozemků) je stanovena ve výši 1730,- Kč včetně DPH na základě znaleckého posudku.

Přílohy

Oznámení

Zveřejnění záměru-prodat-pozemky-RD_Mitex.doc
Typ souboru: DOC dokument, Velikost: 43,5 kB

Zadání

Zadání Územní studie Mimoň.pdf
Typ souboru: PDF dokument, Velikost: 342,96 kB

Výkres

výkres k zadání územní studie.pdf
Typ souboru: PDF dokument, Velikost: 455,12 kB
Datum poslední aktualizace: 19. 10. 2023 9:23
Autor: Správce Webu

ZPRÁVY

Kalendář akcí

Březen2026
Po Út St Čt So Ne