Televize MiTEL TV
RSS
cz

Překlad (translations)

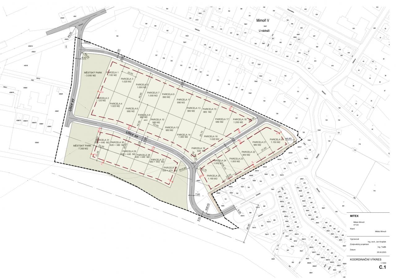
Stavební pozemky v Mimoni "U MITEXU"

Stavební pozemky v Mimoni "U MITEXU"

Záměr města Mimoň prodat pozemky na stavbu RD (rodinné domy) v lokalitě „U MITEXU“.

Jednotková cena za 1 m2 stavební parcely (pozemků) je stanovena ve výši 1730,- Kč včetně DPH na základě znaleckého posudku.

 

NAHLÍŽENÍ DO KATASTRU NEMOVITOSTÍ

 

Přílohy

Parcely

parcely.jpg
Typ souboru: JPG obrázek, Velikost: 143,04 kB

Oznámení

Zveřejnění záměru-prodat-pozemky-RD_Mitex.doc
Typ souboru: DOC dokument, Velikost: 43,5 kB

Zadání ÚZEMNÍ STUDIE

Zadání Územní studie Mimoň.pdf
Typ souboru: PDF dokument, Velikost: 342,96 kB

Výkres

výkres k zadání územní studie.pdf
Typ souboru: PDF dokument, Velikost: 455,12 kB
Datum vložení: 16. 5. 2023 10:03
Datum poslední aktualizace: 16. 5. 2023 10:07
Autor: Správce Webu

Reportáže

Kalendář akcí

Říjen2025
Po Út St Čt So Ne